Holt proudly offers a builder backed warranty with the purchase of every home.
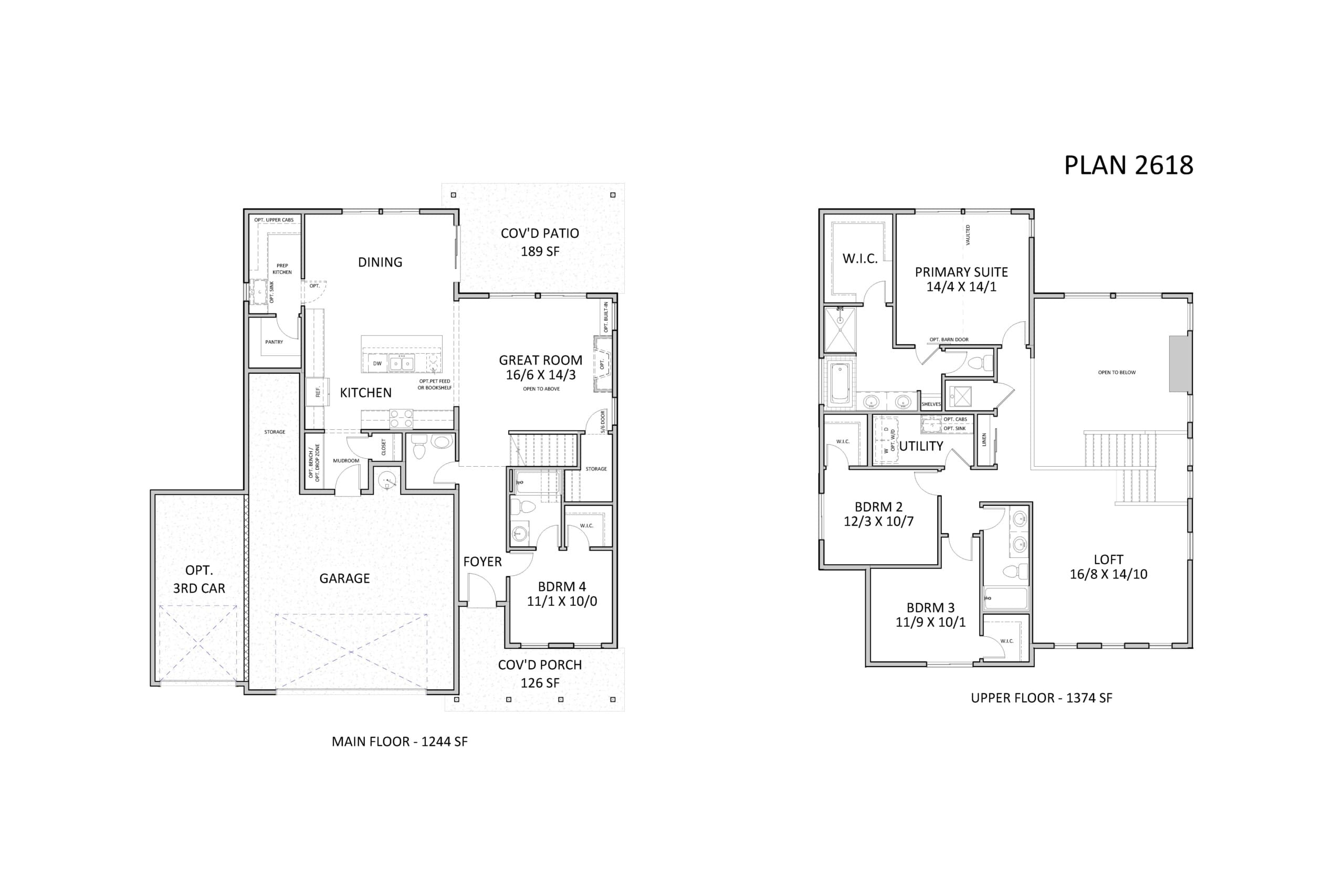
The 2618 Plan is a thoughtfully designed two-story home that seamlessly blends function with unexpected perks, making it perfect for families of all sizes. With 4-5 bedrooms and 3.5 baths, this plan offers a versatile layout that caters to both everyday living and entertaining.
The main floor boasts an open-concept design centered around the spacious great room, which features impressive volume ceilings and an abundance of natural light with 3ft windows. An optional fireplace with built-ins adds a touch of coziness, while the clever use of space under the stairs offers a unique “imagination area” that can be customized as a kid’s hideaway, extra storage, or a pet oasis. The kitchen is a dream for any home chef, featuring a large island with options like a stowaway shelf, an extended pantry, and a prep kitchen that keeps appliances and clutter out of sight. Adjacent to the kitchen, the dining area flows effortlessly onto the covered patio, perfect for outdoor entertaining.
This main level also includes a true ensuite guest bedroom with a walk-in closet, providing a private space for long-term guests or family members. The mudroom, located just off the garage, is designed with Pacific Northwest homeowners in mind, offering plenty of storage and optional built-ins to keep the home tidy.
Upstairs, the primary suite is a spa-like retreat with a vaulted ceiling, a spacious bath with an array of options, and a walk-in closet. There’s also a loft area, ideal for a secondary living space or game area, with the option to add a fifth bedroom. Two additional bedrooms, each with their own walk-in closets, and a well-appointed bathroom with a double vanity round out the second level. A functional laundry room with options for additional cabinetry and a sink ensures that chores are as hassle-free as possible.
The 2618 Plan is designed with flexibility in mind, offering multiple options to personalize your space, making it the perfect home for families who appreciate both style and practicality.
- Built in Fireplace
- Covered entry
- Covered Patio
- Den
- Den/Additional Bedroom Option
- Dining Nook
- Eating bar
- Great room
- Large utility room
- Loft
- Office or guest bedroom
- Open floor plan
- Open great room concept
- Soaking tub
- Walk in master closet
- Walk in pantry
Tour the The 2618 model home
*This tour is used for illustrative purposes only and may be different than what is offered in this community. Please confirm plan details with an agent.


