Holt proudly offers a builder backed warranty with the purchase of every home.
Built For Today.
Search new homes available in the Pacific Northwest.
Available Homes
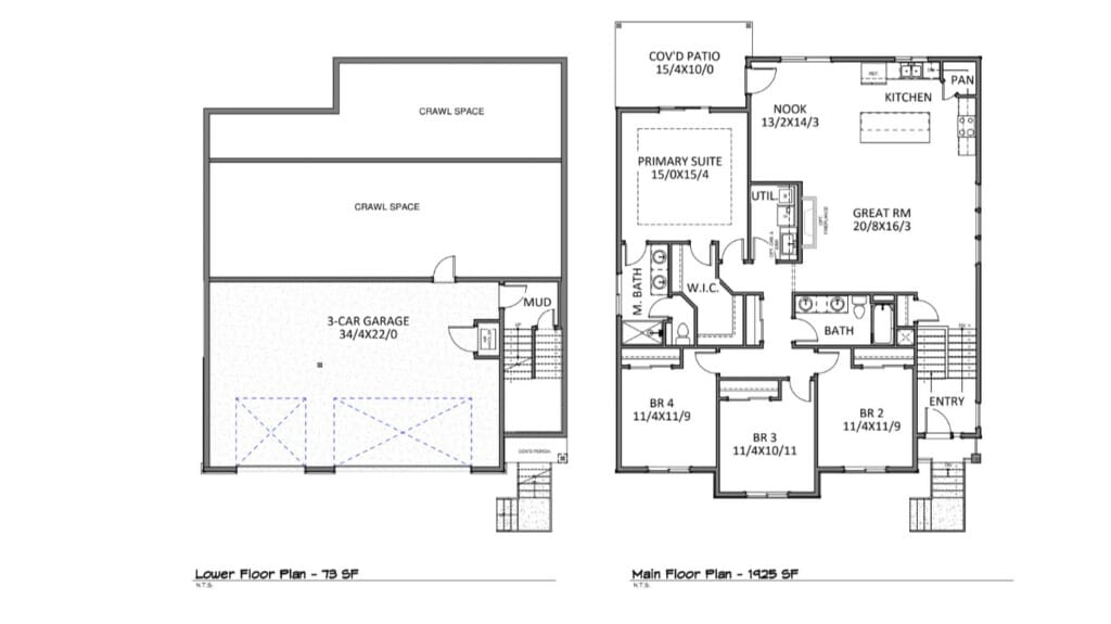
$676,960
Move-in Ready
3 Bed
2 Bath
1 Stories
1877 Sq. Ft.
8238 SE Orion Ln. Hillsboro, OR 97123
Reed's CrossingDesigned for Living
The 1877 embodies a seamless blend of modern elegance and functionality that caters to your dynamic everyday life. With a spacious layout that includes a large great room and dining area, leading to an optional gourmet kitchen for those passionate about cooking and entertaining. Elevate the ambiance with an optional fireplace, creating a cozy and inviting atmosphere. Personalize this space to fit your needs with optional built-in cabinets or a dining room bench for added charm and comfort.
Comfort & Personalization
Every aspect of the 1877 floor plan is crafted with comfort and personalization in mind. The primary suite offers a tranquil retreat with ample space, featuring an en-suite bathroom that can be enhanced with an optional larger shower for a spa-like experience. Options for a customized pocket office or hobby area ensure that your home adapts to your daily life. Optionality extends even to the spacious laundry room which can be optimized with optional built-in cabinets for seamless organization.
Outdoor Living & Sustainability
This plan offers a seamless extension of your living space, with a cozy deck or porch that beckons you to the great outdoors right at your doorstep. Imagine unwinding in with a cup of coffee no matter the weather, hosting outdoor gatherings for any occasion, or explore your own outdoor hobbies. Maybe you would prefer additional space for your passions and projects, instead of an extended patio you can extend your shop. Top of Form
The 1877 is an invitation to experience comfortable living, wrapped in the warmth of modern design and the freedom of outdoor connection, promising a home where every detail enriches your daily life.
$479,960
Move-in Ready
3 Bed
2 Bath
2 Stories
1654 Sq. Ft.
3586 SE 86th Ave Hillsboro, OR 97123
Reed's CrossingThe 1654 makes an instant great impression with its bright, open layout and intuitive flow. On the main level, the great room, dining area, and kitchen connect seamlessly, creating a welcoming space that’s ideal for both everyday living and entertaining. Large windows fill the home with natural light, while the covered patio extends your living space outdoors—perfect for year-round enjoyment.
The kitchen is thoughtfully arranged with a central island and direct access to the garage, streamlining daily routines. A main-level powder room adds convenience, and the tucked-away entry keeps the home feeling calm and organized.
Upstairs, the vaulted primary suite offers a private escape with a spacious walk-in closet and elegant en suite bath. A flexible loft adds extra space for a home office, playroom, or cozy media corner. Two additional bedrooms and a full bath round out the upper level, giving everyone room to recharge.
Designed with comfort and flexibility in mind, The 1654 delivers the space you need, right where you need it most.
$734,960
Move-in Ready
3 Bed
2 Bath
2 Stories
2336 Sq. Ft.
12665 SW Trask Street Beaverton, OR 97007
Willow RidgeA Home That Adapts to Every Chapter of Life
Discover a contemporary home designed with flexible spaces that evolve with your lifestyle. This 2-story, 3–4 bedroom, 2.5-bath floor plan offers both function and warmth, creating the perfect setting for a lifetime of memories.
A Welcoming Entryway
Step inside from your covered porch into an airy foyer filled with natural light, ideal for greeting guests. Keep the entryway tidy with an optional bench or shoe cubby, preventing clutter from piling up. Coming home through the garage, you’ll enter the mudroom—a dedicated drop zone with ample space for jackets, gym bags, and backpacks. Both the foyer and mudroom feature spacious closets to store seasonal coats and everyday essentials.
Just off the two-car garage, a versatile space awaits. Use it as a home gym, workshop, or extra storage area. If you need additional living space, opt for a den with a full bathroom, perfect for a guest suite or kids’ playroom. Located near the kitchen, this space can also be transformed into a formal dining area, ideal for special gatherings.
Versatile Spaces for Every Need
Near the foyer, a flex room offers endless possibilities. Imagine a cozy lounge area with soft throw pillows, a peaceful yoga retreat with fresh air flowing through the window, or a practical pocket office for focused work. As your family’s needs change, this adaptable space grows with you—whether as a playroom for young children or a quiet study nook.
An Inviting Great Room and Kitchen
The heart of the home is the open-concept family room, filled with sunlight from large windows. With clear sightlines to the yard, it’s easy to keep an eye on little ones playing outside. Cozy up by the optional fireplace with a hot drink, or relax with a book as you listen to the soothing sound of rain.
Just steps away, the kitchen is designed for both convenience and connection. A large island offers ample counter space, making it a perfect spot for morning coffee or baking projects with loved ones. A dedicated prep area and walk-in pantry ensure everything stays organized, so you can enjoy stress-free meal prep. The adjacent dining nook leads directly to your outdoor patio, an ideal space for al fresco dining and backyard gatherings year-round.
A Light-Filled Second Floor
Upstairs, a spacious loft welcomes you with abundant natural light and an open feel. Whether used as a reading retreat, game room, or hobby space, this area is designed to evolve with your lifestyle. Need another bedroom? Convert the loft into a fourth bedroom, creating a private nursery or guest space.
A Primary Suite Designed for Comfort
Your personal sanctuary awaits in the primary suite, where a coffered or vaulted ceiling adds a touch of elegance. The large walk-in closet provides generous storage, while the spa-like en-suite bath offers a rejuvenating retreat. Customize your space with a freestanding tub or a fully tiled shower, and let the natural light from the large window create a calming atmosphere.
Convenience and Extra Storage
A well-placed laundry room adds to the home’s functionality, located near all the bedrooms for easy access. Opt for a built-in dog wash to keep your pup clean without the mess—this space also doubles as a convenient spot for watering houseplants. Additional storage solutions include walk-in closets in the secondary bedrooms and a hallway linen closet, ensuring every item has its place.
A Home That Grows with You
With its open layout, adaptable spaces, and thoughtful details, this home is designed to fit every stage of life. Whether hosting gatherings, finding quiet moments, or creating new traditions, this floor plan offers a warm and functional space to cherish for years to come.
$566,085
Move-in Ready
3 Bed
3 Bath
2 Stories
1755 Sq. Ft.
3696 SE Yonder Ln Hillsboro, OR 97123
Reed's CrossingDiscover the 1755 – where practical meets versatile.
This paired home allows you the freedom to design the perfect space for your lifestyle without sacrificing functionality. You can cook, rest, and perhaps even do some work throughout the main level. You will cherish the covered patio all year long as it increases your usable space throughout all four seasons. It gives you the flexibility to watch your furry friends play outside while relaxing with friends over a glass of wine on a summer Friday – or to avoid getting rained on the rest of the year. But that’s just part of the allure of living in the Pacific Northwest, right?
With this floor plan, you’ll be at peace no matter the season as there is room for all you need and more. You can stay organized thanks to the extra-large walk-in storage space and separate linen room upstairs, while a generous pantry closet on the ground floor comfortably stores all your snacks, ingredients, and other kitchen supplies. The roomy garage is an additional convenience that will ease friction in your everyday routine. The extra length will easily fit bigger cars or provide additional storage space for any odds and ends that need a place.
A spacious master suite, two extra bedrooms – one with an en-suite bathroom – and a bathroom across the hall are all included in the second level. This plan totals three bedrooms and three bathrooms, which is ideal for roommates or anyone who enjoys hosting guests. The great room and the upstairs loft are two more common areas that provide plenty of room for gathering with friends, watching movies, or playing games.
This home is the ideal fit for any lifestyle thanks to its intelligent design and useful features. Contact us today to find out more!
$649,960
Move-in Ready
3 Bed
2 Bath
2 Stories
2038 Sq. Ft.
10128 SE Hornaday Ave Happy Valley, OR 97086
Scouters MountainOptions are the name of the game in this home!
Personalize this 2,038 square foot home with an optional fireplace, change the upstairs loft to a fourth bedroom, or add an entry way bench! The kitchen island eating bar is where you will gather for Saturday morning pancakes, and the bonus room sits opposite the upstairs bedrooms for optimal movie night viewing. While the master bedroom comes with a standard vaulted ceiling, you can opt to add a double sink for a more convenient early morning routine. Buyers of this home will love the thrill of making selections and certain they chose the right home, at the best price.*
$589,960
Move-in Ready
3 Bed
2 Bath
2 Stories
2038 Sq. Ft.
3171 S Nectarine St. Cornelius, OR 97113
Laurel WoodsOptions are the name of the game in this home!
Personalize this 2,038 square foot home with an optional fireplace, change the upstairs loft to a fourth bedroom, or add an entry way bench! The kitchen island eating bar is where you will gather for Saturday morning pancakes, and the bonus room sits opposite the upstairs bedrooms for optimal movie night viewing. While the master bedroom comes with a standard vaulted ceiling, you can opt to add a double sink for a more convenient early morning routine. Buyers of this home will love the thrill of making selections and certain they chose the right home, at the best price.*
$614,960
Move-in Ready
3 Bed
2 Bath
2 Stories
1670 Sq. Ft.
10572 SE Heritage Rd Happy Valley, OR 97086
Scouters MountainA grand two-story entry and impressive openness await you in this gorgeous 1,670 square foot home!
The family room connects to the dining nook and kitchen, creating a spacious and inviting space, while the high quality counters and tile back splash offer a touch of luxury for every lifestyle. The loft upstairs gives versatility to the three bedrooms, with the option to enclose the loft for a fourth bedroom in select communities. Enjoy the master suite, complete with a walk-in closet and bathroom, and find comfort knowing you’ve chosen an incredibly open floor plan with unbeatable features at an affordable price, built with extraordinary care and thoughtfulness by Holt Homes.*
$574,960
Move-in Ready
3 Bed
2 Bath
2 Stories
1833 Sq. Ft.
3001 S Magnolia Drive Cornelius, OR 97113
Laurel WoodsThis floor plan showcasing 1,833 square feet of living space, three bedrooms and two and one-half bathrooms is a Holt homeowner favorite!
The open concept great room to kitchen keeps families connected, whether eating breakfast in the dining nook, finishing homework at the kitchen island, or catching the latest episode of a favorite show in the great room. The convenient upstairs loft provides extra room for a craft space, play area, or where friends and family gather for movie nights. Holt Homes incredible standard features, including lots of windows allowing tons of natural light, gives buyers confidence that their home is the best value, at the best price.*
$839,960
Move-in Ready
4 Bed
3 Bath
2 Stories
2676 Sq. Ft.
16481 SE Smith Rock St Happy Valley, OR 97086
Pleasant Valley VillagesIntroducing The 2676, a magnificent layout that is new to the Holt library. This sprawling 2,676 square foot home boasts up to 5 bedrooms, 3 full baths, and a main floor den, providing plenty of space for a growing family or hosting guests.
The downstairs of The 2676 is designed to be an open and inviting space, perfect for families and entertaining guests. The chef-inspired kitchen boasts slab quartz or granite countertops, plenty of cabinetry, and lots of counter space, making it a comfortable spot for cooking enthusiasts. The kitchen flows seamlessly into the combination great room and dining room, creating an expansive area for gatherings and socializing. Large windows allow natural light to flood the space, creating a bright and welcoming atmosphere. With this layout, the cook can easily interact with the rest of the household while preparing meals and entertaining.
Step outside and you’ll find an optional covered patio, providing a perfect spot to relax and enjoy your new home year-round. Whether you’re sipping your morning coffee or hosting a summer barbecue, this outdoor space is a must-have.
Upstairs, an expansive multi-use loft space can be transformed into a bonus room or additional bedroom, giving you the flexibility to create the perfect space for your family’s needs. The primary suite is a true oasis, complete with a luxurious soaking tub, dual vanities, and a super-sized closet.
This home also includes thoughtful touches like a mudroom off the garage and the option to host guests in a downstairs den/bedroom across the hall from a full bath. And with the option for a 2 or 3 car garage (community dependent), you can personalize your home to suit your needs.
Don’t miss your chance to tour this incredible layout and make it your new home. The 2676 is the perfect combination of style, space, and functionality, and it’s waiting for you!
$684,960
Move-in Ready
4 Bed
2 Bath
1 Stories
1857 Sq. Ft.
16497 SE Smith Rock St Happy Valley, OR 97086
Pleasant Valley VillagesThis gorgeous 1,857 square foot home will not disappoint!
The family room connects to the dining nook and kitchen, creating a spacious and inviting space, while the high quality counters and tile back splash offer a touch of luxury for every lifestyle. The loft upstairs gives versatility to the four bedrooms, with the option to convert two of the bedrooms to a secondary bedroom suite. Enjoy the master suite, complete with a walk-in closet and bathroom, and find comfort knowing you’ve chosen an incredibly open floor plan with unbeatable features at an affordable price, built with extraordinary care and thoughtfulness by Holt Homes.*
$549,959
Move-in Ready
4 Bed
3 Bath
2 Stories
2366 Sq. Ft.
956 NE Sagebrush Drive Estacada, OR 97023
Faraday HillsOffering an incredible amount of living space, The 2366 is stunning two-story floor plan featuring a double suites and three full bathrooms.
The main floor suite serves perfectly as a guest room or office while the combination great room and dining area serves as a perfect space for hosting dinners or enjoying your weekend morning coffee. The inviting gas fireplace beckons you to stay inside for relaxation during those chilly Northwest winter nights while the upper floor layout gives ample amount of space for sleep and play. As with all Holt homes, owners are cared for every step of the way.
$489,960
Move-in Ready
4 Bed
2 Bath
2 Stories
1857 Sq. Ft.
941 NE Sagebrush Drive Estacada, OR 97023
Faraday HillsThis gorgeous 1,857 square foot home will not disappoint!
The family room connects to the dining nook and kitchen, creating a spacious and inviting space, while the high quality counters and tile back splash offer a touch of luxury for every lifestyle. The loft upstairs gives versatility to the four bedrooms, with the option to convert two of the bedrooms to a secondary bedroom suite. Enjoy the master suite, complete with a walk-in closet and bathroom, and find comfort knowing you’ve chosen an incredibly open floor plan with unbeatable features at an affordable price, built with extraordinary care and thoughtfulness by Holt Homes.*
$564,960
Move-in Ready
4 Bed
3 Bath
1 Stories
2321 Sq. Ft.
2768 NE Claire Road Estacada, OR 97023
Find freedom and flexibility in The 2321 which features three bedrooms and three full bathrooms!
Your covered porch guides you into the entryway, heading either into the open great room or up to the second floor. Downstairs, the great room opens to the kitchen and dining for optimal connectivity, and the den boasts a walk-in closet, giving buyers the freedom to have a main floor guest room with a full bathroom just a few feet away. A gas fireplace will keep you cozy in the winter, and easy access to the back patio from the dining room gets you outside into summer outdoor activities. More flexibility awaits upstairs, with three full bedrooms, two with walk in closets, laundry room and a large loft with storage! The freedom found in this home, plus the attention to detail from Holt Homes’ construction team, will give buyers the ultimate confidence in their home purchase.*
$634,960
Move-in Ready
4 Bed
2 Bath
2 Stories
1857 Sq. Ft.
10062 SE Hornaday Ave Happy Valley, OR 97086
Scouters MountainThis gorgeous 1,857 square foot home will not disappoint!
The family room connects to the dining nook and kitchen, creating a spacious and inviting space, while the high quality counters and tile back splash offer a touch of luxury for every lifestyle. The loft upstairs gives versatility to the four bedrooms, with the option to convert two of the bedrooms to a secondary bedroom suite. Enjoy the master suite, complete with a walk-in closet and bathroom, and find comfort knowing you’ve chosen an incredibly open floor plan with unbeatable features at an affordable price, built with extraordinary care and thoughtfulness by Holt Homes.*
$624,960
Move-in Ready
4 Bed
3 Bath
2 Stories
2676 Sq. Ft.
41580 METOLIUS AVE Sandy, OR 97055
Timber GroveIntroducing The 2676, a magnificent layout that is new to the Holt library. This sprawling 2,676 square foot home boasts up to 5 bedrooms, 3 full baths, and a main floor den, providing plenty of space for a growing family or hosting guests.
The downstairs of The 2676 is designed to be an open and inviting space, perfect for families and entertaining guests. The chef-inspired kitchen boasts slab quartz or granite countertops, plenty of cabinetry, and lots of counter space, making it a comfortable spot for cooking enthusiasts. The kitchen flows seamlessly into the combination great room and dining room, creating an expansive area for gatherings and socializing. Large windows allow natural light to flood the space, creating a bright and welcoming atmosphere. With this layout, the cook can easily interact with the rest of the household while preparing meals and entertaining.
Step outside and you’ll find an optional covered patio, providing a perfect spot to relax and enjoy your new home year-round. Whether you’re sipping your morning coffee or hosting a summer barbecue, this outdoor space is a must-have.
Upstairs, an expansive multi-use loft space can be transformed into a bonus room or additional bedroom, giving you the flexibility to create the perfect space for your family’s needs. The primary suite is a true oasis, complete with a luxurious soaking tub, dual vanities, and a super-sized closet.
This home also includes thoughtful touches like a mudroom off the garage and the option to host guests in a downstairs den/bedroom across the hall from a full bath. And with the option for a 2 or 3 car garage (community dependent), you can personalize your home to suit your needs.
Don’t miss your chance to tour this incredible layout and make it your new home. The 2676 is the perfect combination of style, space, and functionality, and it’s waiting for you!
$474,960
Move-in Ready
3 Bed
2 Bath
2 Stories
1670 Sq. Ft.
973 NE Sagebrush Drive Estacada, OR 97023
Faraday HillsA grand two-story entry and impressive openness await you in this gorgeous 1,670 square foot home!
The family room connects to the dining nook and kitchen, creating a spacious and inviting space, while the high quality counters and tile back splash offer a touch of luxury for every lifestyle. The loft upstairs gives versatility to the three bedrooms, with the option to enclose the loft for a fourth bedroom in select communities. Enjoy the master suite, complete with a walk-in closet and bathroom, and find comfort knowing you’ve chosen an incredibly open floor plan with unbeatable features at an affordable price, built with extraordinary care and thoughtfulness by Holt Homes.*
$534,960
Move-in Ready
3 Bed
3 Bath
2 Stories
1767 Sq. Ft.
8543 SE Blanton St Hillsboro, OR 97123
Reed's CrossingThis paired home offers versatile spaces to fit your lifestyle without sacrificing function. Downstairs, enjoy open areas to cook, relax, and even work. A covered patio extends your living space year-round—perfect for letting Fido roam, sipping wine with friends, or staying dry on rainy PNW days.
With ample storage throughout, staying organized is effortless. Upstairs, an extra-large walk-in storage area and linen closet keep essentials neatly tucked away. Downstairs, a wide pantry cabinet satisfies chefs and snack-lovers alike. An extra-long 22-foot garage easily accommodates larger vehicles, like a truck, adding even more convenience.
The well-designed layout includes a spacious primary suite, two additional bedrooms—one with an en-suite bath and the other with a bath across the hall—plus a second common area upstairs. With a great room and loft, there’s plenty of space for entertaining, movie nights, or gaming.
Practical and stylish, the 1767 is designed for any lifestyle. Contact us today to learn more!
$614,626
Move-in Ready
3 Bed
2 Bath
1 Stories
1802 Sq. Ft.
717 Magnolia Ave Woodburn, OR 97071
Marion PointeStep inside The 1802, where smart design meets effortless function. A mudroom just off the garage entry ensures a smooth transition into the home, minimizing the strain of unloading groceries and keeping clutter at bay.
The kitchen is the heart of this home, designed with a 10-foot island, walk-in pantry, and prep kitchen—perfect for cooking, entertaining, and gathering with loved ones. Thoughtful positioning of the sink allows for easy interaction with guests while preparing meals.
A covered patio with a courtyard layout offers a private outdoor retreat, shielded from the wind for year-round relaxation. The primary suite provides a peaceful escape, featuring a 5-piece bath with natural light and a spacious walk-in closet.
With built-in customization options for fireplaces, shelving, and outdoor enhancements, The 1802 can be tailored to fit your unique lifestyle.
$647,785
Move-in Ready
3 Bed
2 Bath
1 Stories
1935 Sq. Ft.
758 Magnolia Ave Woodburn, OR 97071
Marion PointeComing home to the 1935 is where 12’ ceilings in the great room create a grand, airy atmosphere, making the space feel open and inviting. The dining nook adds character and function, offering a place for a hutch or sideboard, while a nearby pantry closet maximizes storage.
The kitchen is built for ease, with an oversized island, walk-in pantry, and prep area—helping you stay organized and stress-free. A covered patio extends your living space outdoors, providing a private retreat for relaxing mornings or entertaining guests.
With a 3-car garage designed for maximum functionality, the third bay offers flexible storage while a water heater nook maintains ample clearance for parking.
$568,960
Move-in Ready
3 Bed
2 Bath
2 Stories
1656 Sq. Ft.
754 Magnolia Ave Woodburn, OR 97071
Marion PointeFeel at home in this spacious single-level, 3-bedroom, 2.5-bath open floor plan, designed for comfort and convenience at every stage of life.
Step in from the garage to a functional mudroom, perfect for storing jackets, backpacks, and shoes. Add an optional drop zone or built-in seating to keep your entry tidy and clutter-free.
A wide hallway leads into the open-concept family room, kitchen, and dining area, filled with natural light. Personalize your space with optional floating shelves for décor or base cabinets for extra storage. Cozy up by the optional fireplace for a movie night or a relaxing evening with a book.
The kitchen features a large island, ideal for meal prep or morning coffee, plus an oversized pantry to keep counters clear. Optional features include a pet feeding station or extra shelving for added convenience. Just off the kitchen, a covered patio extends your living space—perfect for outdoor lounging, grilling, or entertaining year-round.
Your private primary suite is a peaceful retreat, featuring vaulted ceilings, a walk-in closet, and a bright, airy bathroom with optional upgrades like a tiled shower or barn door entry. Add an optional retreat space with large windows, perfect for a cozy reading nook.
Two additional bedrooms include walk-in closets, providing ample storage to keep the rest of your home clutter-free.
With spacious walkways, smart storage solutions, and thoughtful design, this home is perfect for every chapter of life.
$662,165
Move-in Ready
3 Bed
2 Bath
1 Stories
1935 Sq. Ft.
707 Magnolia Ave Woodburn, OR 97071
Marion PointeComing home to the 1935 is where 12’ ceilings in the great room create a grand, airy atmosphere, making the space feel open and inviting. The dining nook adds character and function, offering a place for a hutch or sideboard, while a nearby pantry closet maximizes storage.
The kitchen is built for ease, with an oversized island, walk-in pantry, and prep area—helping you stay organized and stress-free. A covered patio extends your living space outdoors, providing a private retreat for relaxing mornings or entertaining guests.
With a 3-car garage designed for maximum functionality, the third bay offers flexible storage while a water heater nook maintains ample clearance for parking.
$674,455
Move-in Ready
4 Bed
2 Bath
2 Stories
2618 Sq. Ft.
708 Magnolia Ave Woodburn, OR 97071
Marion PointeThe 2618 Plan is a thoughtfully designed two-story home that seamlessly blends function with unexpected perks, making it perfect for families of all sizes. With 4-5 bedrooms and 3.5 baths, this plan offers a versatile layout that caters to both everyday living and entertaining.
The main floor boasts an open-concept design centered around the spacious great room, which features impressive volume ceilings and an abundance of natural light with 3ft windows. An optional fireplace with built-ins adds a touch of coziness, while the clever use of space under the stairs offers a unique “imagination area” that can be customized as a kid’s hideaway, extra storage, or a pet oasis. The kitchen is a dream for any home chef, featuring a large island with options like a stowaway shelf, an extended pantry, and a prep kitchen that keeps appliances and clutter out of sight. Adjacent to the kitchen, the dining area flows effortlessly onto the covered patio, perfect for outdoor entertaining.
This main level also includes a true ensuite guest bedroom with a walk-in closet, providing a private space for long-term guests or family members. The mudroom, located just off the garage, is designed with Pacific Northwest homeowners in mind, offering plenty of storage and optional built-ins to keep the home tidy.
Upstairs, the primary suite is a spa-like retreat with a vaulted ceiling, a spacious bath with an array of options, and a walk-in closet. There’s also a loft area, ideal for a secondary living space or game area, with the option to add a fifth bedroom. Two additional bedrooms, each with their own walk-in closets, and a well-appointed bathroom with a double vanity round out the second level. A functional laundry room with options for additional cabinetry and a sink ensures that chores are as hassle-free as possible.
The 2618 Plan is designed with flexibility in mind, offering multiple options to personalize your space, making it the perfect home for families who appreciate both style and practicality.
$723,896
Move-in Ready
4 Bed
2 Bath
2 Stories
1935 Sq. Ft.
667 Magnolia Ave Woodburn, OR 97071
Marion PointeComing home to the 1935 is where 12’ ceilings in the great room create a grand, airy atmosphere, making the space feel open and inviting. The dining nook adds character and function, offering a place for a hutch or sideboard, while a nearby pantry closet maximizes storage.
The kitchen is built for ease, with an oversized island, walk-in pantry, and prep area—helping you stay organized and stress-free. A covered patio extends your living space outdoors, providing a private retreat for relaxing mornings or entertaining guests.
With a 3-car garage designed for maximum functionality, the third bay offers flexible storage while a water heater nook maintains ample clearance for parking.
$649,960
Move-in Ready
3 Bed
2 Bath
2 Stories
1956 Sq. Ft.
657 Magnolia Ave Woodburn, OR 97071
Marion PointeStepping into The 1956, you’ll immediately notice the sense of space, thanks to soaring 11’ ceilings in the great room and an open flow between the kitchen, dining, and living areas. The covered patio extends your living space outdoors, offering a private retreat that can be enjoyed in any season.
The kitchen is designed with convenience in mind, featuring an oversized pantry and direct access from the garage to make daily tasks easier. A dedicated mudroom helps keep everything organized as you move throughout the home.
The primary suite is a true sanctuary, featuring a spa-like 5-piece bath with a separate water closet for added privacy. A private patio door offers easy outdoor access, perfect for relaxation or letting pets outside with ease.
With options to personalize the space and optimize functionality, The 1956 is built to adapt to your unique lifestyle.
$559,960
Move-in Ready
3 Bed
2 Bath
2 Stories
1656 Sq. Ft.
704 Magnolia Ave Woodburn, OR 97071
Marion PointeFeel at home in this spacious single-level, 3-bedroom, 2.5-bath open floor plan, designed for comfort and convenience at every stage of life.
Step in from the garage to a functional mudroom, perfect for storing jackets, backpacks, and shoes. Add an optional drop zone or built-in seating to keep your entry tidy and clutter-free.
A wide hallway leads into the open-concept family room, kitchen, and dining area, filled with natural light. Personalize your space with optional floating shelves for décor or base cabinets for extra storage. Cozy up by the optional fireplace for a movie night or a relaxing evening with a book.
The kitchen features a large island, ideal for meal prep or morning coffee, plus an oversized pantry to keep counters clear. Optional features include a pet feeding station or extra shelving for added convenience. Just off the kitchen, a covered patio extends your living space—perfect for outdoor lounging, grilling, or entertaining year-round.
Your private primary suite is a peaceful retreat, featuring vaulted ceilings, a walk-in closet, and a bright, airy bathroom with optional upgrades like a tiled shower or barn door entry. Add an optional retreat space with large windows, perfect for a cozy reading nook.
Two additional bedrooms include walk-in closets, providing ample storage to keep the rest of your home clutter-free.
With spacious walkways, smart storage solutions, and thoughtful design, this home is perfect for every chapter of life.
$699,960
Move-in Ready
3 Bed
2 Bath
2 Stories
2383 Sq. Ft.
617 Magnolia Ave Woodburn, OR 97071
Marion PointeIn the 2383 you’ll find a well-planned mudroom helps keep clutter at bay right from the entry. The open-concept great room and kitchen create an effortless flow for entertaining and everyday living, with an option to add a sliding door to the patio, extending your indoor-outdoor space.
The primary suite is a true retreat, featuring vaulted ceilings, generous windows, and a spa-like bathroom with open shelving and modern design details.
A flex space on the main floor offers the perfect spot for working from home, creative projects, or quiet study time. Upstairs, a versatile loft serves as an additional gathering area, while a secondary flex room can be adapted for play, fitness, or extra storage—helping your home grow with you.
Smart storage solutions throughout the home keep life organized, while strategic mechanical and plumbing placements reduce noise in bedrooms, ensuring a restful environment.
With plenty of layout and customization options, The 2383 is a home designed around the way you live.
$519,960
Move-in Ready
4 Bed
3 Bath
2 Stories
1929 Sq. Ft.
662 Magnolia Ave Woodburn, OR 97071
Marion PointeSleek Design Meets Custom Comfort
The 1929 reimagines contemporary living with its array of included and optional features tailored for to fit your lifestyle. From a fully landscaped front yard and a stone accents on the exterior, to the stainless steel sink with a chrome-finish Delta faucet and Frigidaire appliances, and LED surface lighting throughout, this plan has it all. Opt for a gourmet kitchen and an extended island for culinary adventures, or add a fireplace to the great room for a warm, inviting ambiance. Integrated USB outlets in the kitchen ensure connectivity where you need it most.
Functionality with a Personal Touch
Adjacent to the garage entrance, the drop zone is a testament to thoughtful design, offering options for a closet, built-in cabinets, or a bench to keep your space organized and welcoming. The choice of an extended shop in lieu of a larger patio underscores the plan’s adaptability to your hobbies and storage needs.
Elevate Your Everyday
On the main level, a full bath option offers convenience, while upstairs, the primary suite bath awaits with dual USB outlets, complementing the choice between a drop-in soaker or fiberglass shower tub. Your comfort is elevated with the optional conversion of a den into a bedroom and the inclusion of a discreet second-level pocket office—melding productivity with peace. Every detail elevates your daily life.
$741,285
Move-in Ready
4 Bed
3 Bath
2 Stories
2582 Sq. Ft.
3076 Olympic St Woodburn, OR 97071
Marion PointeThe 2582 floor plan by Holt Homes is designed with real families in mind. With 4 bedrooms, 3 full baths, and a 3-car garage, this two-story layout provides the flexibility and functionality needed for everyday living.
An open great room with 11-foot ceilings makes the main floor feel bright and spacious. The kitchen features a large island, walk-in pantry, and a prep area—making cooking, storage, and clean-up more efficient. A unique side yard framed by windows brings in natural light and offers views of greenery, helping to create a calm and welcoming atmosphere inside the home.
A downstairs room near a full bath can be used as a guest bedroom, home office, or workout space. Upstairs, two more bedrooms, a loft, and optional configurations—like an upper guest suite or kitchenette—give you choices that match your needs.
Other thoughtful touches include a covered patio for year-round outdoor use, optional pet features, and built-ins that help keep everything organized. Every space in the 2582 was designed to support how people actually live—whether that means working from home, hosting friends, or simply having room to relax and recharge.
3–4 Bedrooms & 3 Full Bathrooms – Flexible layout with options for a guest room, office, or fitness space.
Spacious Great Room with 11′ Ceilings – Creates an open, airy feel for gathering and daily living.
Large Kitchen with Walk-In Pantry & Prep Area – Designed for efficient cooking, storage, and clean-up.
Optional Gourmet Kitchen Upgrade – Adds double ovens and extra cooking features for those who cook often.
Side Yard Atrium Feature – Framed by windows to bring natural light and outdoor views into the home.
Upstairs Loft Space – Ideal for a second living area, playroom, or quiet retreat.
Optional Upper-Floor Guest Suite – Includes bath, kitchenette, and walk-in closet for added flexibility.
3-Car Garage & Smart Storage Options – Room for vehicles, gear, and everyday essentials.
$519,985
Move-in Ready
3 Bed
2 Bath
1 Stories
1803 Sq. Ft.
1171 Pumpkin Ridge Eagle Point, OR 97524
Eagle PointLess upkeep and more living can be found in this 1,803 square foot home with three bedrooms and two bathrooms.
All the convenience of main level living is yours, with a vaulted master suite featuring a full size walk in closet and double sinks, standup shower and private toilet. Enjoy leisurely mornings in the dining room, located just off the kitchen for a quiet spot alone or room to share. The standard natural gas furnace will keep the whole family warm in the winter, while the optional gas fireplace will bring a welcoming mood any time of day. Homeowners are sure to love having two extra bedrooms, laundry and a walk-in pantry all on one level, plus lots of natural light from all the windows Holt provides as a standard. Value, quality and livability at an affordable price is found in this home from Holt Homes.
$674,005
Move-in Ready
4 Bed
3 Bath
2 Stories
2674 Sq. Ft.
101 Butte Spring Trail Eagle Point, OR 97524
Eagle PointWelcome to the spacious 2674! This well-appointed daylight plan offers great solutions for flexibility, storage, and main-level living. An inviting covered entry leads the way into a sophisticated entryway with a full bed and bath off to the side. An open great room features a fireplace with optional built-ins and lies opposite the generous kitchen with corner pantry. The primary suite is located on the main floor and features a luxurious bathroom and sizeable walk-in closet. The main level is completed with a 3-car garage and covered deck. Head downstairs and discover a second living room, perfect to use for a play room or media area, along with a covered outdoor patio, two secondary bedrooms, another full bath, and storage space.
$581,825
Move-in Ready
4 Bed
3 Bath
2 Stories
2366 Sq. Ft.
160 Valemont Drive Eagle Point, OR 97524
Quail RunOffering an incredible amount of living space, The 2366 is stunning two-story floor plan featuring a double suites and three full bathrooms.
The main floor suite serves perfectly as a guest room or office while the combination great room and dining area serves as a perfect space for hosting dinners or enjoying your weekend morning coffee. The inviting gas fireplace beckons you to stay inside for relaxation during those chilly Northwest winter nights while the upper floor layout gives ample amount of space for sleep and play. As with all Holt homes, owners are cared for every step of the way.
$574,960
Move-in Ready
4 Bed
3 Bath
2 Stories
2321 Sq. Ft.
154 Valemont Drive Eagle Point, OR 97524
Quail RunFind freedom and flexibility in The 2321 which features three bedrooms and three full bathrooms!
Your covered porch guides you into the entryway, heading either into the open great room or up to the second floor. Downstairs, the great room opens to the kitchen and dining for optimal connectivity, and the den boasts a walk-in closet, giving buyers the freedom to have a main floor guest room with a full bathroom just a few feet away. A gas fireplace will keep you cozy in the winter, and easy access to the back patio from the dining room gets you outside into summer outdoor activities. More flexibility awaits upstairs, with three full bedrooms, two with walk in closets, laundry room and a large loft with storage! The freedom found in this home, plus the attention to detail from Holt Homes’ construction team, will give buyers the ultimate confidence in their home purchase.
$580,160
Move-in Ready
3 Bed
2 Bath
2 Stories
2050 Sq. Ft.
671 Old Waverly Way Eagle Point, OR 97524
Quail RunJust one flight of stairs to enjoy this main floor living!
The space is thoughtfully laid out as your entry from the 3-car garage lower level front door welcomes you home! Hang your coat to dry and put away your shoes in the large closet in the entry before heading upstairs to relax. Enter the large great room, perfect for entertaining or cozying up on the couch for a game night. The open kitchen includes a walk in pantry and large kitchen island, perfect for prepping meals or snacking while working on your laptop at the eating bar.
The bedrooms are efficiently arranged as the master suite is located just across the staircase from the other two bedrooms which are near the laundry room and fully bathroom. Add an optional covered patio and you’re set for easy living!
$559,720
Move-in Ready
4 Bed
2 Bath
2 Stories
1998 Sq. Ft.
669 Old Waverly Way Eagle Point, OR 97524
Quail RunOnly one set of stairs away from this brilliant single level living home!
This 1,998 square foot plan features four full bedrooms with two bathrooms, spacious laundry room, and walk in pantry. Mornings are a piece of cake with three bedrooms sharing a full bathroom with double sinks (no more fighting over who gets to use the sink while brushing teeth!). Enjoy coffee in the dining nook overlooking the backyard, or step outside yourself with quick patio access. Entertaining family and friends is a breeze as the open great room provides ample space for large, comfy furniture and enough room to roam back and forth to the kitchen island and graze on snacks while watching the big game. All this and a standard 3 car garage makes for a quality built home for by Holt, just for you.
$464,960
Move-in Ready
3 Bed
2 Bath
2 Stories
1609 Sq. Ft.
995 NE Sagebrush Drive Estacada, OR 97023
Faraday HillsThis three bedroom, two and half bath home packs incredible features into 1,609 square feet.
With entry access from the garage or covered porch, the great room opens up to the kitchen, complete with slab counters, stainless steel gas appliances, kitchen island and pantry. The dining area sits off to the side, making family meals a cherished occasion, while boasting plenty of space in the great room for celebrating all of life’s special moments. The incredible standard features keep this home in step with current trends. Holt Homes standards will give you confidence that your home is the best value, at the best price.*
$589,960
Move-in Ready
3 Bed
2 Bath
2 Stories
1609 Sq. Ft.
10068 SE Hornaday Ave Happy Valley, OR 97086
Scouters MountainThis three bedroom, two and half bath home packs incredible features into 1,609 square feet.
With entry access from the garage or covered porch, the great room opens up to the kitchen, complete with slab counters, stainless steel gas appliances, kitchen island and pantry. The dining area sits off to the side, making family meals a cherished occasion, while boasting plenty of space in the great room for celebrating all of life’s special moments. The incredible standard features keep this home in step with current trends. Holt Homes standards will give you confidence that your home is the best value, at the best price.*
$584,960
Move-in Ready
3 Bed
3 Bath
2 Stories
2260 Sq. Ft.
41590 METOLIUS AVE Sandy , OR 97054
Timber GroveLaundry, double door den and open great room to kitchen with eating bar island round out the first floor, with laminate and carpet flooring throughout the main living spaces. A unique second floor layout with two bedrooms, a full bathroom and a loft in between will be appealing for varying lifestyles and family types, with both separation and togetherness. With LED lighting packages, shaker alder cabinetry, and energy efficient appliances, homeowners will appreciate the details that make this a cleverly designed home, built with extraordinary care and thoughtfulness, brought to you by Holt.*
$509,960
Move-in Ready
3 Bed
2 Bath
2 Stories
2038 Sq. Ft.
919 NE Sagebrush Drive Estacada, OR 97023
Faraday HillsOptions are the name of the game in this home!
Personalize this 2,038 square foot home with an optional fireplace, change the upstairs loft to a fourth bedroom, or add an entry way bench! The kitchen island eating bar is where you will gather for Saturday morning pancakes, and the bonus room sits opposite the upstairs bedrooms for optimal movie night viewing. While the master bedroom comes with a standard vaulted ceiling, you can opt to add a double sink for a more convenient early morning routine. Buyers of this home will love the thrill of making selections and certain they chose the right home, at the best price.*
$564,960
Move-in Ready
3 Bed
2 Bath
2 Stories
1833 Sq. Ft.
3020 S Nectarine St. Cornelius, OR 97113
Laurel WoodsThis floor plan showcasing 1,833 square feet of living space, three bedrooms and two and one-half bathrooms is a Holt homeowner favorite!
The open concept great room to kitchen keeps families connected, whether eating breakfast in the dining nook, finishing homework at the kitchen island, or catching the latest episode of a favorite show in the great room. The convenient upstairs loft provides extra room for a craft space, play area, or where friends and family gather for movie nights. Holt Homes incredible standard features, including lots of windows allowing tons of natural light, gives buyers confidence that their home is the best value, at the best price.*
$679,960
Move-in Ready
3 Bed
2 Bath
1 Stories
1935 Sq. Ft.
3075 Olympic Street Woodburn, OR 97071
Marion PointeComing home to the 1935 is where 12’ ceilings in the great room create a grand, airy atmosphere, making the space feel open and inviting. The dining nook adds character and function, offering a place for a hutch or sideboard, while a nearby pantry closet maximizes storage.
The kitchen is built for ease, with an oversized island, walk-in pantry, and prep area—helping you stay organized and stress-free. A covered patio extends your living space outdoors, providing a private retreat for relaxing mornings or entertaining guests.
With a 3-car garage designed for maximum functionality, the third bay offers flexible storage while a water heater nook maintains ample clearance for parking.
$439,960
Move-in Ready
3 Bed
2 Bath
2 Stories
1609 Sq. Ft.
1476 N Millican Creek Street Lafayette, OR 97127
The Hearth at Millican CreekThis three bedroom, two and half bath home packs incredible features into 1,609 square feet.
With entry access from the garage or covered porch, the great room opens up to the kitchen, complete with slab counters, stainless steel gas appliances, kitchen island and pantry. The dining area sits off to the side, making family meals a cherished occasion, while boasting plenty of space in the great room for celebrating all of life’s special moments. The incredible standard features keep this home in step with current trends. Holt Homes standards will give you confidence that your home is the best value, at the best price.*
$539,960
Move-in Ready
3 Bed
2 Bath
2 Stories
1833 Sq. Ft.
3000 S Nectarine Street Cornelius, OR 97113
Laurel WoodsThis floor plan showcasing 1,833 square feet of living space, three bedrooms and two and one-half bathrooms is a Holt homeowner favorite!
The open concept great room to kitchen keeps families connected, whether eating breakfast in the dining nook, finishing homework at the kitchen island, or catching the latest episode of a favorite show in the great room. The convenient upstairs loft provides extra room for a craft space, play area, or where friends and family gather for movie nights. Holt Homes incredible standard features, including lots of windows allowing tons of natural light, gives buyers confidence that their home is the best value, at the best price.*
$649,960
Move-in Ready
3 Bed
2 Bath
1 Stories
1803 Sq. Ft.
3206 S Kodiak Street Cornelius, OR 97113
Laurel WoodsLess upkeep and more living can be found in this 1,803 square foot home with three bedrooms and two bathrooms.
All the convenience of main level living is yours, with a vaulted master suite featuring a full size walk in closet and double sinks, standup shower and private toilet. Enjoy leisurely mornings in the dining room, located just off the kitchen for a quiet spot alone or room to share. The standard natural gas furnace will keep the whole family warm in the winter, while the optional gas fireplace will bring a welcoming mood any time of day. Homeowners are sure to love having two extra bedrooms, laundry and a walk-in pantry all on one level, plus lots of natural light from all the windows Holt provides as a standard. Value, quality and livability at an affordable price is found in this home from Holt Homes.*
$624,960
Move-in Ready
3 Bed
2 Bath
1 Stories
1803 Sq. Ft.
3199 S Quartz Drive Cornelius, OR 97113
Laurel WoodsLess upkeep and more living can be found in this 1,803 square foot home with three bedrooms and two bathrooms.
All the convenience of main level living is yours, with a vaulted master suite featuring a full size walk in closet and double sinks, standup shower and private toilet. Enjoy leisurely mornings in the dining room, located just off the kitchen for a quiet spot alone or room to share. The standard natural gas furnace will keep the whole family warm in the winter, while the optional gas fireplace will bring a welcoming mood any time of day. Homeowners are sure to love having two extra bedrooms, laundry and a walk-in pantry all on one level, plus lots of natural light from all the windows Holt provides as a standard. Value, quality and livability at an affordable price is found in this home from Holt Homes.*
$499,960
Move-in Ready
3 Bed
2 Bath
2 Stories
1678 Sq. Ft.
3198 S Kodiak Street Cornelius, OR 97113
Laurel WoodsForm and function come to mind when describing the 1678 plan.
Thoughtfully laid out, the main floor features a large great room, open kitchen with separate island and private den, great for working from home or allowing for quiet study time. The second floor wastes no space with two large bedrooms and shared bathroom as well as a large owner suite with stand up shower, walk in closet and a good sized laundry room all in one place. All this and a 2-car alley garage!*
$499,960
Move-in Ready
3 Bed
2 Bath
2 Stories
1678 Sq. Ft.
3170 S Kodiak Street Cornelius, OR 97113
Laurel WoodsForm and function come to mind when describing the 1678 plan.
Thoughtfully laid out, the main floor features a large great room, open kitchen with separate island and private den, great for working from home or allowing for quiet study time. The second floor wastes no space with two large bedrooms and shared bathroom as well as a large owner suite with stand up shower, walk in closet and a good sized laundry room all in one place. All this and a 2-car alley garage!*
$524,960
Move-in Ready
3 Bed
2 Bath
2 Stories
1670 Sq. Ft.
3103 S Nectarine Street Cornelius, OR 97113
Laurel WoodsA grand two-story entry and impressive openness await you in this gorgeous 1,670 square foot home!
The family room connects to the dining nook and kitchen, creating a spacious and inviting space, while the high quality counters and tile back splash offer a touch of luxury for every lifestyle. The loft upstairs gives versatility to the three bedrooms, with the option to enclose the loft for a fourth bedroom in select communities. Enjoy the master suite, complete with a walk-in closet and bathroom, and find comfort knowing you’ve chosen an incredibly open floor plan with unbeatable features at an affordable price, built with extraordinary care and thoughtfulness by Holt Homes.*
$449,960
Move-in Ready
3 Bed
2 Bath
2 Stories
1670 Sq. Ft.
893 NE Sagebrush Drive Estacada, OR 97023
Faraday HillsA grand two-story entry and impressive openness await you in this gorgeous 1,670 square foot home!
The family room connects to the dining nook and kitchen, creating a spacious and inviting space, while the high quality counters and tile back splash offer a touch of luxury for every lifestyle. The loft upstairs gives versatility to the three bedrooms, with the option to enclose the loft for a fourth bedroom in select communities. Enjoy the master suite, complete with a walk-in closet and bathroom, and find comfort knowing you’ve chosen an incredibly open floor plan with unbeatable features at an affordable price, built with extraordinary care and thoughtfulness by Holt Homes.*
$724,960
Move-in Ready
4 Bed
2 Bath
2 Stories
2351 Sq. Ft.
8230 SE ORION LN Hillsboro, OR 97123
Reed's CrossingA Home Built For Your Family
Discover this contemporary 2-story, 3 bedroom, and 2.5 bath home with incredible opportunities to customize precisely to your family’s needs. Spacious and stunning, this floorplan is the perfect place to build a lifetime of memories.
A Warm Welcome
Nothing beats a grand entrance and this home’s covered porch invites you inside in a most welcoming way. With enough space for potted plants and chairs or a bench, it’s a lovely spot to enjoy a few moments of quiet.
Entering through the 2-3 car garage, you’ll find a dedicated space to leave clutter at the door. With the option to add a bench, there’s also room for hooks so backpacks, shoes and coats are easily organized. You’ll love the convenience of the half bath in this area, too!
Light, Bright and Airy
Natural light creates a calm and soothing environment, and there’s plenty of it in this home thanks to the generous number of windows throughout. An open stairway creates continuity between the first and second levels and select rooms on the second floor showcase towering vaulted ceilings. The overall effect is a home that feels fresh, relaxing and awash in light.
The Heart of the Home
This home’s open floor plan makes everyday living relaxing and it’s ideal for hosting special gatherings. The generously-sized great room flows into an airy and light open kitchen making it easy to socialize while whipping up a delicious meal.
A massive island, expansive counter space, generous pantry and perfectly placed appliances makes it easy to find your flow in this beautiful kitchen. Although the great room may be inviting, everyone tends to gather in the kitchen and this layout easily accommodates a crowd. With options to upgrade, the chef in your family will find this kitchen is their new happy place.
Designed to adapt to your family’s needs as you grow, a flexible space adjacent to the kitchen is ideal for creating a formal dining room or den. A slider to the covered patio invites indoor-outdoor gatherings and windows fill the room with natural light.
Backyard Bliss
Whether rain or shine, enjoy all 365 days of the year in your beautiful backyard under a spacious covered patio. Barbecuing easily becomes a year-round hobby and lounging a relaxing year-round activity.
Multi-Use Loft
At the top of the stairs, you’ll find a spacious loft. Perfect for extending the living space to the second level, this light-filled open space makes for a cozy library, TV room, playroom or an office. An attached walk-in closet helps to keep this area nice and tidy. Or, opt to enclose this space to convert from a loft to an additional bedroom bringing the total beds from three to four.
Utilities and Extra Storage
Enjoy the convenience of a dedicated laundry room on the second floor. No need to lug heavy laundry baskets up and down the stairs! The option to add a pet wash station in the laundry room helps keep your pooch sparkly clean, too. Two linen closets, one in the hallway, and the second in the primary bathroom, keeps towels, sheets and everyday essentials easily organized and close at hand. Not to mention, each bedroom enjoys a walk-in closet so storage space is never a worry!
A Primary Suite Built For Relaxation
A sanctuary on the second floor, this well-appointed primary suite features vaulted and coffered ceilings and a large walk-in closet. Ample windows flood both the bedroom and bathroom with natural light.
The bathroom includes partitioned walls for privacy, a dual sink that helps make a busy morning routine effortless and separate bath and shower units. Opt to upgrade the shower to a super shower with spa-like features.
Generously-Sized Secondary Bedrooms and Bathroom
The secondary bedrooms are sized to grow alongside your family as kids graduate into teens. Each bedroom features a walk-in closet and lots of lovely windows.
Busy mornings are made a bit easier with a thoughtfully designed secondary bathroom featuring dual sinks and an optional partitioned wall to create additional privacy.
The size of each bedroom and the bathroom also makes it possible for families to live multi-generationally with comfort and ease!
Comfort For Years to Come
The 2351 floor plan from Holt Homes is the spacious, light and bright, luxurious answer to: “where will we find our forever home?”
$479,960
Move-in Ready
3 Bed
2 Bath
1 Stories
1657 Sq. Ft.
902 NE Sagebrush Drive Estacada, OR 97023
Faraday HillsLess upkeep and more living can be found in this 1,657 square foot home with three bedrooms and two bathrooms.
All the convenience of main level living is yours, with a master suite featuring a full size walk in closet and double sinks, soaking tub and private toilet. Enjoy leisurely mornings in the dining room, located just off the kitchen for a quiet spot alone or room to share. The standard natural gas furnace will keep the whole family warm in the winter, while the gas fireplace will bring a welcoming mood any time of day. Buyers are sure to love having two extra bedrooms, laundry and a walk-in pantry all on one level, plus standard laminate flooring throughout much of the main living spaces. Value, quality and livability at an affordable price is found in this home from Holt Homes.*
$499,960
Move-in Ready
3 Bed
2 Bath
2 Stories
1670 Sq. Ft.
3135 S Nectarine Street Cornelius, OR 97123
Laurel WoodsA grand two-story entry and impressive openness await you in this gorgeous 1,670 square foot home!
The family room connects to the dining nook and kitchen, creating a spacious and inviting space, while the high quality counters and tile back splash offer a touch of luxury for every lifestyle. The loft upstairs gives versatility to the three bedrooms, with the option to enclose the loft for a fourth bedroom in select communities. Enjoy the master suite, complete with a walk-in closet and bathroom, and find comfort knowing you’ve chosen an incredibly open floor plan with unbeatable features at an affordable price, built with extraordinary care and thoughtfulness by Holt Homes.
$529,960
Move-in Ready
3 Bed
2 Bath
2 Stories
1833 Sq. Ft.
41570 Metolius Ave Sandy, OR 97055
Timber GroveThis floor plan showcasing 1,833 square feet of living space, three bedrooms and two and one-half bathrooms is a Holt homeowner favorite!
The open concept great room to kitchen keeps families connected, whether eating breakfast in the dining nook, finishing homework at the kitchen island, or catching the latest episode of a favorite show in the great room. The convenient upstairs loft provides extra room for a craft space, play area, or where friends and family gather for movie nights. Holt Homes incredible standard features, including lots of windows allowing tons of natural light, gives buyers confidence that their home is the best value, at the best price.
$699,985
Move-in Ready
3 Bed
3 Bath
2 Stories
2978 Sq. Ft.
107 Butte Spring Trail Eagle Point, OR 97524
Eagle PointOur 2978 plan offers 3 or 4 bedrooms and 3 baths with a spacious office or additional bedroom, laundry room and master bedroom are all located on the main floor!
The open kitchen includes slab quartz or granite counters, undermount sink, and shaker style Pacific Crest cabinetry. The combination great room and dining area provides sliding door access to the covered patio. An inviting gas fireplace beckons you back inside to relax and warm up on chilly nights. The upper level features an expansive loft space and two bedrooms with oversized walk-in closets. Don’t wait, call today!
$559,960
Move-in Ready
4 Bed
3 Bath
2 Stories
2539 Sq. Ft.
148 Valemont Drive Eagle Point, OR 97524
Quail RunThe 2539 includes three bedrooms and three bathrooms, an oversized bonus room and loft area upstairs to allow for numerous entertainment options.
The main floor den can easily be used as a guest suite to make room for out-of-town visitors, giving them a bit more privacy during their stay. The large great room opens right into the kitchen for a truly functional home life. Holt’s incredible standard features, solid slab counter tops in the kitchen with tile back splash, will give buyers confidence that their home is the best value, at the best price.
$439,960
Move-in Ready
3 Bed
2 Bath
2 Stories
1520 Sq. Ft.
11279 SE Pleasant Valley Pkwy Happy Valley, OR 97086
Pleasant Valley VillagesAt 1,520 square feet, this spacious town home features three bedrooms and two and a half bathrooms and single car garage.
The covered front porch keeps your guests dry on those rainy fall days when visiting you while the optional corner electric fireplace will keep you all cozy and warm. Entertaining is a breeze with significant counter space and a separate island. Upstairs, the vaulted master suite delivers a comfortable arrangement with bathroom and large walk in closet. With the master set across from the two appointed bedrooms, and a bathroom and laundry in between, Holt Home presents this adaptable floor plan to fit the demands of every lifestyle with ease.
$434,960
Move-in Ready
3 Bed
2 Bath
2 Stories
1520 Sq. Ft.
11289 SE Pleasant Valley Pkwy Happy Valley, OR 97086
Pleasant Valley VillagesAt 1,520 square feet, this spacious town home features three bedrooms and two and a half bathrooms and single car garage.
The covered front porch keeps your guests dry on those rainy fall days when visiting you while the optional corner electric fireplace will keep you all cozy and warm. Entertaining is a breeze with significant counter space and a separate island. Upstairs, the vaulted master suite delivers a comfortable arrangement with bathroom and large walk in closet. With the master set across from the two appointed bedrooms, and a bathroom and laundry in between, Holt Home presents this adaptable floor plan to fit the demands of every lifestyle with ease.
$499,625
Move-in Ready
3 Bed
2 Bath
2 Stories
2038 Sq. Ft.
151 Valemont Drive Eagle Point, OR 97524
Quail RunOptions are the name of the game in this home!
Personalize this 2,038 square foot home with an optional fireplace, change the upstairs loft to a fourth bedroom, or add an entry way bench! The kitchen island eating bar is where you will gather for Saturday morning pancakes, and the bonus room sits opposite the upstairs bedrooms for optimal movie night viewing. While the master bedroom comes with a standard vaulted ceiling, you can opt to add a double sink for a more convenient early morning routine. Buyers of this home will love the thrill of making selections and certain they chose the right home, at the best price.
$543,910
Move-in Ready
3 Bed
2 Bath
2 Stories
2184 Sq. Ft.
145 Valemont Drive Eagle Point, OR 97524
Quail RunA Thoughtfully Designed Home for Modern Living
Enjoy the unique details and spacious layout of this cleverly designed 2-story, 3–4 bedroom, 2.5-bath floor plan. Balancing functionality with comfort, this home is designed to enhance everyday living.
A Warm and Inviting Entrance
Step inside from your covered entry and feel instantly at home in your spacious foyer. Add to the airy feel with an optional open-rail staircase, or incorporate a built-in wooden bench for a cozy spot to remove shoes. Minimize clutter with an optional shoe niche under the stairs and a nearby closet, offering generous space for coats and winter layers.
For a seamless transition from the outdoors, enter through the garage into a well-placed mudroom. This drop zone is perfect for shedding jackets, backpacks, and strollers, keeping the main living areas tidy. Adjacent kitchen access makes carrying groceries a breeze, while a sizable pantry around the corner ensures ample storage and organization.
A Kitchen That Brings Everyone Together
The heart of this home is its spacious kitchen, featuring generous counter space, a central island, and clear views of the dining nook, outdoor patio, and great room. Large windows bring in natural light, making nature the true centerpiece of this space. Imagine planting trees or a garden outside to create a picturesque backdrop that enhances the beauty of your home.
An optional fireplace in the great room adds warmth and ambiance, creating a cozy retreat for family gatherings. The sliding glass door seamlessly connects indoor and outdoor living, leading to a covered patio perfect for year-round enjoyment. Whether sharing a meal, sipping a refreshing drink, or watching the kids play in the yard, this space fosters effortless connection.
Near the kitchen, a modern pocket office offers a private, distraction-free space for work or homework, making multitasking easier while staying engaged with household activities.
Flexible and Functional Upstairs Living
Upstairs, a bright and open loft overlooks the foyer below, adding to the home’s airy feel. This versatile space can serve as a home theater, game room, or children’s playroom. Need an extra bedroom? Convert the loft into a 4th bedroom, ideal for growing families or those needing additional privacy with built-in soundproofing options.
The conveniently located laundry room is positioned to reduce washer and dryer noise near bedrooms. Optional cabinet banks create a functional folding counter, while upper cabinets provide additional storage to keep laundry essentials neatly organized.
A thoughtfully designed secondary bathroom features a separation wall and a double sink vanity, allowing multiple family members to get ready at the same time—perfect for streamlining busy mornings and evening routines.
A Private and Serene Primary Suite
Down the hall, step through double doors into your private retreat—the primary suite. This light-filled sanctuary features an exquisite coffered ceiling, adding elegance and depth to the space. The suite includes a generous walk-in closet and a spa-like en-suite bathroom, with options to upgrade to a 5-piece wet room or a fully tiled shower for a luxurious touch.
A Home That Adapts to Your Lifestyle
This thoughtfully designed floor plan balances privacy and togetherness with smart storage, flexible spaces, and optimized outdoor living. Every detail is designed to enhance daily life, making this home a place where comfort and functionality shine.
$609,960
Move-in Ready
3 Bed
2 Bath
2 Stories
1609 Sq. Ft.
16624 SE Smith Rock St Happy Valley, OR 97068
Pleasant Valley VillagesThis three bedroom, two and half bath home packs incredible features into 1,609 square feet.
With entry access from the garage or covered porch, the great room opens up to the kitchen, complete with slab counters, stainless steel gas appliances, kitchen island and pantry. The dining area sits off to the side, making family meals a cherished occasion, while boasting plenty of space in the great room for celebrating all of life’s special moments. The incredible standard features keep this home in step with current trends. Holt Homes standards will give you confidence that your home is the best value, at the best price.
$524,960
Move-in Ready
3 Bed
2 Bath
2 Stories
1912 Sq. Ft.
3159 S Kodiak Street Cornelius, OR 97113
Laurel WoodsDo you love walk in closets? In this 1,912 square foot home, every bedroom has its own!
One of our thoughtfully designed alley garage plans, this home features a large great room with the option to add a gas fireplace and built in cabinet for that extra personal touch. The kitchen includes quality shaker style cabinetry that either be stained or upgraded to a paint color of your choice from our available options as well as an eating bar for those quick snack times or lunches . Upstairs you can enjoy a relaxing bath in the soaker tub included in the vaulted master suite. Just across the hall are two bedrooms with ample sized walk in closets ready for a collection of clothes, shoes and other storage. Add a large laundry room with optional cabinetry and tons of lighting throughout the the house make this house a delight. Holt Homes’ incredible standard features, with the option to add upgrades that reflect a buyer’s personal style, give buyers confidence that their home is the best value, at the best price.
$504,960
Move-in Ready
3 Bed
3 Bath
2 Stories
1738 Sq. Ft.
3562 SE 86th Ave Hillsboro, OR 97123
Reed's CrossingDiscover the 1738 – where practical meets versatile.
This paired home allows you the freedom to design the perfect space for your lifestyle without sacrificing functionality. You can cook, rest, and perhaps even do some work throughout the main level. You will cherish the covered patio all year long as it increases your usable space throughout all four seasons. It gives you the flexibility to watch your furry friends play outside while relaxing with friends over a glass of wine on a summer Friday – or to avoid getting rained on the rest of the year. But that’s just part of the allure of living in the Pacific Northwest, right?
With this floor plan, you’ll be at peace no matter the season as there is room for all you need and more. You can stay organized thanks to the extra-large walk-in storage space and separate linen room upstairs, while a generous pantry closet on the ground floor comfortably stores all your snacks, ingredients, and other kitchen supplies. The roomy garage is an additional convenience that will ease friction in your everyday routine. The extra length will easily fit bigger cars or provide additional storage space for any odds and ends that need a place.
A spacious master suite, two extra bedrooms – one with an en-suite bathroom – and a bathroom across the hall are all included in the second level. This plan totals three bedrooms and three bathrooms, which is ideal for roommates or anyone who enjoys hosting guests. The great room and the upstairs loft are two more common areas that provide plenty of room for gathering with friends, watching movies, or playing games.
This home is the ideal fit for any lifestyle thanks to its intelligent design and useful features. Contact us today to find out more!
$514,635
Move-in Ready
3 Bed
2 Bath
1 Stories
1594 Sq. Ft.
136 Valemont Drive Eagle Point, OR 97524
Quail RunStep into comfort and style with our 1,594 square feet, one-level home!
This cozy layout features an inviting open great room, a dining nook, and a well-designed kitchen space – perfect for hosting gatherings with friends and family.
Our thoughtful design ensures a harmonious living experience by placing the guest rooms away from the primary bedroom offering privacy and functionality.
The heart of this home is the welcoming vaulted great room, creating a space to entertain or unwind on cozy nights. Abundant natural light pours in through the surrounding windows, enhancing the warmth and openness of the living area.
At Holt Homes, we are dedicated to delivering quality materials and craftsmanship, tailored to meet the diverse demands of every lifestyle with ease. Welcome to a home built for the Pacific Northwest – where comfort meets thoughtful design.
$669,960
Move-in Ready
4 Bed
2 Bath
2 Stories
2084 Sq. Ft.
8388 SE Orion Ln Hillsboro, OR 97123
Reed's CrossingA Cozy Corner for Every Member of the Family
Imagine a home that warmly welcomes you into your own space, designed for both your moments of relaxation and times of joyful gatherings. The 2084 features a spacious great room at the heart of the home, ideal for family movie nights or entertaining friends. Select the optional fireplace to add a touch of warmth, making it the perfect spot for cozy winter evenings.
Culinary Dreams and Outdoor Serenity
For those who love to cook and dine, the kitchen becomes the culinary center with an optional extended island and gourmet upgrades, offering ample space for meals, experiments, and conversations. Step outside to the covered patio, with options to extend, creating an oasis for morning coffees or evening soirees under the stars.
Your Personal Retreat and Practical Spaces
End your day in the primary suite, a sanctuary designed for ultimate relaxation, featuring a luxurious optional super mudset shower. Meanwhile, practicalities are covered with smart storage solutions, a laundry room designed for convenience, and a garage that caters to hobbies and storage needs alike.
This home blends functionality with comfort, offering spaces that adapt to your lifestyle, ensuring every day is as fulfilling as the next.
$424,960
Move-in Ready
3 Bed
2 Bath
2 Stories
1520 Sq. Ft.
11319 SE Pleasant Valley Pkwy Happy Valley, OR 97068
Pleasant Valley VillagesAt 1,520 square feet, this spacious town home features three bedrooms and two and a half bathrooms and single car garage.
The covered front porch keeps your guests dry on those rainy fall days when visiting you while the optional corner electric fireplace will keep you all cozy and warm. Entertaining is a breeze with significant counter space and a separate island. Upstairs, the vaulted master suite delivers a comfortable arrangement with bathroom and large walk in closet. With the master set across from the two appointed bedrooms, and a bathroom and laundry in between, Holt Home presents this adaptable floor plan to fit the demands of every lifestyle with ease.
$489,960
Move-in Ready
3 Bed
2 Bath
1 Stories
1594 Sq. Ft.
1309 NE Josephine Court Estacada, OR 97023
Faraday HillsStep into comfort and style with our 1,594 square feet, one-level home!
This cozy layout features an inviting open great room, a dining nook, and a well-designed kitchen space – perfect for hosting gatherings with friends and family.
Our thoughtful design ensures a harmonious living experience by placing the guest rooms away from the primary bedroom offering privacy and functionality.
The heart of this home is the welcoming vaulted great room, creating a space to entertain or unwind on cozy nights. Abundant natural light pours in through the surrounding windows, enhancing the warmth and openness of the living area.
At Holt Homes, we are dedicated to delivering quality materials and craftsmanship, tailored to meet the diverse demands of every lifestyle with ease. Welcome to a home built for the Pacific Northwest – where comfort meets thoughtful design.
$439,960
Move-in Ready
3 Bed
2 Bath
2 Stories
1520 Sq. Ft.
11329 SE Pleasant Valley Pkwy Happy Valley, OR 97086
Pleasant Valley VillagesAt 1,520 square feet, this spacious town home features three bedrooms and two and a half bathrooms and single car garage.
The covered front porch keeps your guests dry on those rainy fall days when visiting you while the optional corner electric fireplace will keep you all cozy and warm. Entertaining is a breeze with significant counter space and a separate island. Upstairs, the vaulted master suite delivers a comfortable arrangement with bathroom and large walk in closet. With the master set across from the two appointed bedrooms, and a bathroom and laundry in between, Holt Home presents this adaptable floor plan to fit the demands of every lifestyle with ease.
$684,960
Move-in Ready
4 Bed
2 Bath
2 Stories
1857 Sq. Ft.
17318 SW Atfalati Lane Sherwood, OR 97140
MiddlebrookThis gorgeous 1,857 square foot home will not disappoint!
The family room connects to the dining nook and kitchen, creating a spacious and inviting space, while the high quality counters and tile back splash offer a touch of luxury for every lifestyle. The loft upstairs gives versatility to the four bedrooms, with the option to convert two of the bedrooms to a secondary bedroom suite. Enjoy the master suite, complete with a walk-in closet and bathroom, and find comfort knowing you’ve chosen an incredibly open floor plan with unbeatable features at an affordable price, built with extraordinary care and thoughtfulness by Holt Homes.
$654,960
Move-in Ready
3 Bed
2 Bath
2 Stories
1833 Sq. Ft.
17323 SW Atfalati Lane Sherwood, OR 97140
MiddlebrookThis floor plan showcasing 1,833 square feet of living space, three bedrooms and two and one-half bathrooms is a Holt homeowner favorite!
The open concept great room to kitchen keeps families connected, whether eating breakfast in the dining nook, finishing homework at the kitchen island, or catching the latest episode of a favorite show in the great room. The convenient upstairs loft provides extra room for a craft space, play area, or where friends and family gather for movie nights. Holt Homes incredible standard features, including lots of windows allowing tons of natural light, gives buyers confidence that their home is the best value, at the best price.
$764,960
Move-in Ready
4 Bed
3 Bath
2 Stories
2366 Sq. Ft.
17269 SW Atfalati Lane Sherwood, OR 97140
MiddlebrookOffering an incredible amount of living space, The 2366 is stunning two-story floor plan featuring a double suites and three full bathrooms.
The main floor suite serves perfectly as a guest room or office while the combination great room and dining area serves as a perfect space for hosting dinners or enjoying your weekend morning coffee. The inviting gas fireplace beckons you to stay inside for relaxation during those chilly Northwest winter nights while the upper floor layout gives ample amount of space for sleep and play. As with all Holt homes, owners are cared for every step of the way.
$824,960
Move-in Ready
6 Bed
3 Bath
2 Stories
2824 Sq. Ft.
17224 SW Wapato Island Drive Sherwood, OR 97140
MiddlebrookThe 2824 is one of our newest floor plans, offering a secondary living space for multi-generational living, or giving guests their own retreat.
The secondary living space in this plan offers solutions for the modern family. It is fully equipped with all the necessities: its own side entrance, a full kitchen and living space, two bedrooms on the upstairs level complete with a full bathroom, and even a separate garage. A fireproof door serves as the internal entrance point into the main house, allowing for plenty of privacy between the two spaces.
In the main house, an open great room is the focal point bringing everyone together. Plenty of windows and a cozy fireplace keep this space feeling pleasant year-round. An optional covered patio out back is a fantastic way to extend everyday living into the outdoors. A large island with slab countertops, undermount sink, and shaker style cabinetry are staples of this kitchen, and all features that can be personalized by you at the design center. Lastly, a two-car garage and covered entry door are sure to make commuting on rainy Pacific Northwest days a little easier. Upstairs, you’ll have plenty of space for the core family with three bedrooms, a hall bath, and the primary suite.
$674,960
Move-in Ready
4 Bed
2 Bath
2 Stories
1857 Sq. Ft.
17240 SW Wapato Island Drive Sherwood, OR 97140
MiddlebrookThis gorgeous 1,857 square foot home will not disappoint!
The family room connects to the dining nook and kitchen, creating a spacious and inviting space, while the high quality counters and tile back splash offer a touch of luxury for every lifestyle. The loft upstairs gives versatility to the four bedrooms, with the option to convert two of the bedrooms to a secondary bedroom suite. Enjoy the master suite, complete with a walk-in closet and bathroom, and find comfort knowing you’ve chosen an incredibly open floor plan with unbeatable features at an affordable price, built with extraordinary care and thoughtfulness by Holt Homes.
$459,960
Move-in Ready
3 Bed
2 Bath
2 Stories
1609 Sq. Ft.
1596 N Millican Creek Street Lafayette, OR 97138
The Hearth at Millican CreekThis three bedroom, two and half bath home packs incredible features into 1,609 square feet.
With entry access from the garage or covered porch, the great room opens up to the kitchen, complete with slab counters, stainless steel gas appliances, kitchen island and pantry. The dining area sits off to the side, making family meals a cherished occasion, while boasting plenty of space in the great room for celebrating all of life’s special moments. The incredible standard features keep this home in step with current trends. Holt Homes standards will give you confidence that your home is the best value, at the best price.
**Photos shown are of a completed home with the same floor plan, not of this specific listing. Images of this home will be available once construction is complete.
$509,985
Move-in Ready
4 Bed
2 Bath
2 Stories
1857 Sq. Ft.
1707 N Millican Creek Street Lafayette, OR 97127
The Hearth at Millican CreekThis gorgeous 1,857 square foot home will not disappoint!
The family room connects to the dining nook and kitchen, creating a spacious and inviting space, while the high quality counters and tile back splash offer a touch of luxury for every lifestyle. The loft upstairs gives versatility to the four bedrooms, with the option to convert two of the bedrooms to a secondary bedroom suite. Enjoy the master suite, complete with a walk-in closet and bathroom, and find comfort knowing you’ve chosen an incredibly open floor plan with unbeatable features at an affordable price, built with extraordinary care and thoughtfulness by Holt Homes.
**Photos shown are of a completed home with the same floor plan, not of this specific listing. Images of this home will be available once construction is complete.
$474,960
Move-in Ready
4 Bed
3 Bath
2 Stories
1890 Sq. Ft.
121 Valemont Dr Eagle Point, OR 97524
Quail RunThe 1890 floor plan blends comfort and functionality, offering an airy, light-filled home designed for evolving needs. This two-story layout maximizes space with broad sightlines, smart storage solutions, and a seamless flow between living areas.
A Warm Welcome
Step onto the covered porch and into a welcoming entryway, perfect for greeting guests. If entering through the garage, a convenient mudroom provides a spacious closet for jackets and backpacks. An optional drop zone cabinet or bench keeps essentials organized, while an additional closet nearby ensures clutter-free walkways.
An Open and Inviting Great Room
Designed for connection and relaxation, the great room features large windows that flood the space with natural light. The open layout creates an airy ambiance, while the fireplace adds warmth and charm. Whether enjoying a family movie night or hosting guests, this space adapts to your lifestyle.
Optional built-ins or floating shelves enhance storage, while a cozy niche under the stairs offers a perfect spot for kids’ toys, a reading nook, or a pet retreat—ensuring every inch of the home is used efficiently.
A Thoughtfully Designed Kitchen
Seamlessly connected to the great room, the kitchen is both stylish and practical. A dry island maximizes counter space, with the option for a pet feeding station or bookshelf below. Extra cabinets provide ample storage, while a spacious pantry keeps essentials within easy reach.
Adjacent to the kitchen, the dining nook offers a welcoming space for everyday meals and special gatherings. Sliding glass doors lead to the covered patio, extending your living space outdoors. Picture warm evenings spent grilling and dining al fresco, making the most of indoor-outdoor living.
A Versatile Second Story
Upstairs, a roomy loft serves as a flexible space for a secondary family room, play area, home theater, or extra living space. If more bedrooms are needed, the optional 4th bedroom offers extra sound insulation—ideal for growing families or a quiet home office.
A Private Retreat
The primary suite is designed for comfort, featuring a beautifully crafted coffered ceiling, spacious layout, and a generous walk-in closet. The en-suite bath offers customization options, including a fully tiled shower with or without a frameless enclosure. Open linen shelving adds convenient storage for towels and toiletries.
For added convenience, the washer and dryer are located down the hall, positioned away from bedroom walls to minimize noise and ensure restful nights.
Designed for Everyday Living
Smart storage solutions throughout the home make daily life easier. From well-placed closets to customizable built-ins, every detail enhances organization and efficiency. The blend of natural light, open spaces, and functional design ensures that the 1890 floor plan is both spacious and comfortable.
Whether enjoying cozy nights by the fire, hosting gatherings, or relaxing in your personal retreat, this home is designed to support your lifestyle—now and for years to come.
$449,960
Move-in Ready
3 Bed
2 Bath
2 Stories
1626 Sq. Ft.
11204 SE 162nd Ave Happy Valley, OR 97086
Pleasant Valley VillagesThis two-story 1,626 square foot home features three bedrooms, two and one-half bathrooms and top quality finishes from Holt Homes.
The main floor has a natural flow from the living room to the kitchen and dining area – enjoyable living for all family types, complete with optional fireplace, large pantry, stainless steel appliances. Upstairs showcases a master suite with walk in closet, laundry room, plus two bedrooms and a full bathroom laid out to progress effortlessly from one space to the next. This dynamic home built by Holt will surprise buyers with its functional yet appealing layout, and provide assurance of a quality constructed and livable home for years to come.*
$474,960
Move-in Ready
3 Bed
2 Bath
2 Stories
1678 Sq. Ft.
3147 S Kodiak St Cornelius, OR 97113
Laurel WoodsForm and function come to mind when describing the 1678 plan.
Thoughtfully laid out, the main floor features a large great room, open kitchen with separate island and private den, great for working from home or allowing for quiet study time. The second floor wastes no space with two large bedrooms and shared bathroom as well as a large owner suite with stand up shower, walk in closet and a good sized laundry room all in one place. All this and a 2-car alley garage!*
$564,960
Move-in Ready
3 Bed
2 Bath
2 Stories
2038 Sq. Ft.
3130 S Magnolia Dr Cornelius, OR 97113
Laurel WoodsOptions are the name of the game in this home!
Personalize this 2,038 square foot home with an optional fireplace, change the upstairs loft to a fourth bedroom, or add an entry way bench! The kitchen island eating bar is where you will gather for Saturday morning pancakes, and the bonus room sits opposite the upstairs bedrooms for optimal movie night viewing. While the master bedroom comes with a standard vaulted ceiling, you can opt to add a double sink for a more convenient early morning routine. Buyers of this home will love the thrill of making selections and certain they chose the right home, at the best price.*
$437,671
Move-in Ready
3 Bed
2 Bath
2 Stories
1520 Sq. Ft.
2614 Waterlily Dr Eugene, OR 97403
East MountainAt 1,520 square feet, this spacious town home features three bedrooms and two and a half bathrooms and single car garage.
The covered front porch keeps your guests dry on those rainy fall days when visiting you while the optional corner electric fireplace will keep you all cozy and warm. Entertaining is a breeze with significant counter space and a separate island. Upstairs, the vaulted master suite delivers a comfortable arrangement with bathroom and large walk in closet. With the master set across from the two appointed bedrooms, and a bathroom and laundry in between, Holt Home presents this adaptable floor plan to fit the demands of every lifestyle with ease.*
$529,960
Move-in Ready
3 Bed
2 Bath
1 Stories
1656 Sq. Ft.
2950 Olympic St Woodburn, OR 97071
Marion PointeFeel at home in this spacious single-level, 3-bedroom, 2.5-bath open floor plan, designed for comfort and convenience at every stage of life.
Step in from the garage to a functional mudroom, perfect for storing jackets, backpacks, and shoes. Add an optional drop zone or built-in seating to keep your entry tidy and clutter-free.
A wide hallway leads into the open-concept family room, kitchen, and dining area, filled with natural light. Personalize your space with optional floating shelves for décor or base cabinets for extra storage. Cozy up by the optional fireplace for a movie night or a relaxing evening with a book.
The kitchen features a large island, ideal for meal prep or morning coffee, plus an oversized pantry to keep counters clear. Optional features include a pet feeding station or extra shelving for added convenience. Just off the kitchen, a covered patio extends your living space—perfect for outdoor lounging, grilling, or entertaining year-round.
Your private primary suite is a peaceful retreat, featuring vaulted ceilings, a walk-in closet, and a bright, airy bathroom with optional upgrades like a tiled shower or barn door entry. Add an optional retreat space with large windows, perfect for a cozy reading nook.
Two additional bedrooms include walk-in closets, providing ample storage to keep the rest of your home clutter-free.
With spacious walkways, smart storage solutions, and thoughtful design, this home is perfect for every chapter of life.
$599,960
Move-in Ready
4 Bed
3 Bath
2 Stories
2676 Sq. Ft.
1449 NE Josephine Court Estacada, OR 97023
Faraday HillsIntroducing The 2676, a magnificent layout that is new to the Holt library. This sprawling 2,676 square foot home boasts up to 5 bedrooms, 3 full baths, and a main floor den, providing plenty of space for a growing family or hosting guests.
The downstairs of The 2676 is designed to be an open and inviting space, perfect for families and entertaining guests. The chef-inspired kitchen boasts slab quartz or granite countertops, plenty of cabinetry, and lots of counter space, making it a comfortable spot for cooking enthusiasts. The kitchen flows seamlessly into the combination great room and dining room, creating an expansive area for gatherings and socializing. Large windows allow natural light to flood the space, creating a bright and welcoming atmosphere. With this layout, the cook can easily interact with the rest of the household while preparing meals and entertaining.
Step outside and you’ll find an optional covered patio, providing a perfect spot to relax and enjoy your new home year-round. Whether you’re sipping your morning coffee or hosting a summer barbecue, this outdoor space is a must-have.
Upstairs, an expansive multi-use loft space can be transformed into a bonus room or additional bedroom, giving you the flexibility to create the perfect space for your family’s needs. The primary suite is a true oasis, complete with a luxurious soaking tub, dual vanities, and a super-sized closet.
This home also includes thoughtful touches like a mudroom off the garage and the option to host guests in a downstairs den/bedroom across the hall from a full bath. And with the option for a 2 or 3 car garage (community dependent), you can personalize your home to suit your needs.
Don’t miss your chance to tour this incredible layout and make it your new home. The 2676 is the perfect combination of style, space, and functionality, and it’s waiting for you!
$489,960
Move-in Ready
4 Bed
3 Bath
2 Stories
1890 Sq. Ft.
2920 Olympic Street Woodburn, OR 97071
Marion PointeThe 1890 floor plan blends comfort and functionality, offering an airy, light-filled home designed for evolving needs. This two-story layout maximizes space with broad sightlines, smart storage solutions, and a seamless flow between living areas.
A Warm Welcome
Step onto the covered porch and into a welcoming entryway, perfect for greeting guests. If entering through the garage, a convenient mudroom provides a spacious closet for jackets and backpacks. An optional drop zone cabinet or bench keeps essentials organized, while an additional closet nearby ensures clutter-free walkways.
An Open and Inviting Great Room
Designed for connection and relaxation, the great room features large windows that flood the space with natural light. The open layout creates an airy ambiance, while the fireplace adds warmth and charm. Whether enjoying a family movie night or hosting guests, this space adapts to your lifestyle.
Optional built-ins or floating shelves enhance storage, while a cozy niche under the stairs offers a perfect spot for kids’ toys, a reading nook, or a pet retreat—ensuring every inch of the home is used efficiently.
A Thoughtfully Designed Kitchen
Seamlessly connected to the great room, the kitchen is both stylish and practical. A dry island maximizes counter space, with the option for a pet feeding station or bookshelf below. Extra cabinets provide ample storage, while a spacious pantry keeps essentials within easy reach.
Adjacent to the kitchen, the dining nook offers a welcoming space for everyday meals and special gatherings. Sliding glass doors lead to the covered patio, extending your living space outdoors. Picture warm evenings spent grilling and dining al fresco, making the most of indoor-outdoor living.
A Versatile Second Story
Upstairs, a roomy loft serves as a flexible space for a secondary family room, play area, home theater, or extra living space. If more bedrooms are needed, the optional 4th bedroom offers extra sound insulation—ideal for growing families or a quiet home office.
A Private Retreat
The primary suite is designed for comfort, featuring a beautifully crafted coffered ceiling, spacious layout, and a generous walk-in closet. The en-suite bath offers customization options, including a fully tiled shower with or without a frameless enclosure. Open linen shelving adds convenient storage for towels and toiletries.
For added convenience, the washer and dryer are located down the hall, positioned away from bedroom walls to minimize noise and ensure restful nights.
Designed for Everyday Living
Smart storage solutions throughout the home make daily life easier. From well-placed closets to customizable built-ins, every detail enhances organization and efficiency. The blend of natural light, open spaces, and functional design ensures that the 1890 floor plan is both spacious and comfortable.
Whether enjoying cozy nights by the fire, hosting gatherings, or relaxing in your personal retreat, this home is designed to support your lifestyle—now and for years to come.
$529,960
Move-in Ready
4 Bed
2 Bath
2 Stories
2184 Sq. Ft.
708 Old Waverly Way Eagle Point, OR 97524
Quail RunA Thoughtfully Designed Home for Modern Living
Enjoy the unique details and spacious layout of this cleverly designed 2-story, 3–4 bedroom, 2.5-bath floor plan. Balancing functionality with comfort, this home is designed to enhance everyday living.
A Warm and Inviting Entrance
Step inside from your covered entry and feel instantly at home in your spacious foyer. Add to the airy feel with an optional open-rail staircase, or incorporate a built-in wooden bench for a cozy spot to remove shoes. Minimize clutter with an optional shoe niche under the stairs and a nearby closet, offering generous space for coats and winter layers.
For a seamless transition from the outdoors, enter through the garage into a well-placed mudroom. This drop zone is perfect for shedding jackets, backpacks, and strollers, keeping the main living areas tidy. Adjacent kitchen access makes carrying groceries a breeze, while a sizable pantry around the corner ensures ample storage and organization.
A Kitchen That Brings Everyone Together
The heart of this home is its spacious kitchen, featuring generous counter space, a central island, and clear views of the dining nook, outdoor patio, and great room. Large windows bring in natural light, making nature the true centerpiece of this space. Imagine planting trees or a garden outside to create a picturesque backdrop that enhances the beauty of your home.
An optional fireplace in the great room adds warmth and ambiance, creating a cozy retreat for family gatherings. The sliding glass door seamlessly connects indoor and outdoor living, leading to a covered patio perfect for year-round enjoyment. Whether sharing a meal, sipping a refreshing drink, or watching the kids play in the yard, this space fosters effortless connection.
Near the kitchen, a modern pocket office offers a private, distraction-free space for work or homework, making multitasking easier while staying engaged with household activities.
Flexible and Functional Upstairs Living
Upstairs, a bright and open loft overlooks the foyer below, adding to the home’s airy feel. This versatile space can serve as a home theater, game room, or children’s playroom. Need an extra bedroom? Convert the loft into a 4th bedroom, ideal for growing families or those needing additional privacy with built-in soundproofing options.
The conveniently located laundry room is positioned to reduce washer and dryer noise near bedrooms. Optional cabinet banks create a functional folding counter, while upper cabinets provide additional storage to keep laundry essentials neatly organized.
A thoughtfully designed secondary bathroom features a separation wall and a double sink vanity, allowing multiple family members to get ready at the same time—perfect for streamlining busy mornings and evening routines.
A Private and Serene Primary Suite
Down the hall, step through double doors into your private retreat—the primary suite. This light-filled sanctuary features an exquisite coffered ceiling, adding elegance and depth to the space. The suite includes a generous walk-in closet and a spa-like en-suite bathroom, with options to upgrade to a 5-piece wet room or a fully tiled shower for a luxurious touch.
A Home That Adapts to Your Lifestyle
This thoughtfully designed floor plan balances privacy and togetherness with smart storage, flexible spaces, and optimized outdoor living. Every detail is designed to enhance daily life, making this home a place where comfort and functionality shine.
$649,960
Move-in Ready
4 Bed
2 Bath
2 Stories
1857 Sq. Ft.
17358 SW Kalapuya Ln Sherwood, OR 97140
MiddlebrookThis gorgeous 1,857 square foot home will not disappoint!
The family room connects to the dining nook and kitchen, creating a spacious and inviting space, while the high quality counters and tile back splash offer a touch of luxury for every lifestyle. The loft upstairs gives versatility to the four bedrooms, with the option to convert two of the bedrooms to a secondary bedroom suite. Enjoy the master suite, complete with a walk-in closet and bathroom, and find comfort knowing you’ve chosen an incredibly open floor plan with unbeatable features at an affordable price, built with extraordinary care and thoughtfulness by Holt Homes.*
$459,985
Move-in Ready
3 Bed
2 Bath
2 Stories
1626 Sq. Ft.
11294 SE 162nd Ave Happy Valley, OR 97086
Pleasant Valley VillagesThis two-story 1,626 square foot home features three bedrooms, two and one-half bathrooms and top quality finishes from Holt Homes.
The main floor has a natural flow from the living room to the kitchen and dining area – enjoyable living for all family types, complete with optional fireplace, large pantry, stainless steel appliances. Upstairs showcases a master suite with walk in closet, laundry room, plus two bedrooms and a full bathroom laid out to progress effortlessly from one space to the next. This dynamic home built by Holt will surprise buyers with its functional yet appealing layout, and provide assurance of a quality constructed and livable home for years to come.*
$657,010
Move-in Ready
4 Bed
2 Bath
2 Stories
1890 Sq. Ft.
12695 SW Trask Street Beaverton, OR 97007
Willow RidgeThe 1890 floor plan blends comfort and functionality, offering an airy, light-filled home designed for evolving needs. This two-story layout maximizes space with broad sightlines, smart storage solutions, and a seamless flow between living areas.
A Warm Welcome
Step onto the covered porch and into a welcoming entryway, perfect for greeting guests. If entering through the garage, a convenient mudroom provides a spacious closet for jackets and backpacks. An optional drop zone cabinet or bench keeps essentials organized, while an additional closet nearby ensures clutter-free walkways.
An Open and Inviting Great Room
Designed for connection and relaxation, the great room features large windows that flood the space with natural light. The open layout creates an airy ambiance, while the fireplace adds warmth and charm. Whether enjoying a family movie night or hosting guests, this space adapts to your lifestyle.
Optional built-ins or floating shelves enhance storage, while a cozy niche under the stairs offers a perfect spot for kids’ toys, a reading nook, or a pet retreat—ensuring every inch of the home is used efficiently.
A Thoughtfully Designed Kitchen
Seamlessly connected to the great room, the kitchen is both stylish and practical. A dry island maximizes counter space, with the option for a pet feeding station or bookshelf below. Extra cabinets provide ample storage, while a spacious pantry keeps essentials within easy reach.
Adjacent to the kitchen, the dining nook offers a welcoming space for everyday meals and special gatherings. Sliding glass doors lead to the covered patio, extending your living space outdoors. Picture warm evenings spent grilling and dining al fresco, making the most of indoor-outdoor living.
A Versatile Second Story
Upstairs, a roomy loft serves as a flexible space for a secondary family room, play area, home theater, or extra living space. If more bedrooms are needed, the optional 4th bedroom offers extra sound insulation—ideal for growing families or a quiet home office.
A Private Retreat
The primary suite is designed for comfort, featuring a beautifully crafted coffered ceiling, spacious layout, and a generous walk-in closet. The en-suite bath offers customization options, including a fully tiled shower with or without a frameless enclosure. Open linen shelving adds convenient storage for towels and toiletries.
For added convenience, the washer and dryer are located down the hall, positioned away from bedroom walls to minimize noise and ensure restful nights.
Designed for Everyday Living
Smart storage solutions throughout the home make daily life easier. From well-placed closets to customizable built-ins, every detail enhances organization and efficiency. The blend of natural light, open spaces, and functional design ensures that the 1890 floor plan is both spacious and comfortable.
Whether enjoying cozy nights by the fire, hosting gatherings, or relaxing in your personal retreat, this home is designed to support your lifestyle—now and for years to come.
$589,960
Move-in Ready
4 Bed
3 Bath
2 Stories
2676 Sq. Ft.
41540 Metolius Ave Sandy, OR 97086
Timber GroveIntroducing The 2676, a magnificent layout that is new to the Holt library. This sprawling 2,676 square foot home boasts up to 4 bedrooms, 3 full baths, and a main floor den, providing plenty of space for a growing family or hosting guests.
The downstairs of The 2676 is designed to be an open and inviting space, perfect for families and entertaining guests. The chef-inspired kitchen boasts slab quartz or granite countertops, plenty of cabinetry, and lots of counter space, making it a comfortable spot for cooking enthusiasts. The kitchen flows seamlessly into the combination great room and dining room, creating an expansive area for gatherings and socializing. Large windows allow natural light to flood the space, creating a bright and welcoming atmosphere. With this layout, the cook can easily interact with the rest of the household while preparing meals and entertaining.
Step outside and you’ll find an optional covered patio, providing a perfect spot to relax and enjoy your new home year-round. Whether you’re sipping your morning coffee or hosting a summer barbecue, this outdoor space is a must-have.
Upstairs, an expansive multi-use loft space can be transformed into a bonus room or additional bedroom, giving you the flexibility to create the perfect space for your family’s needs. The primary suite is a true oasis, complete with a luxurious soaking tub, dual vanities, and a super-sized closet.
This home also includes thoughtful touches like a mudroom off the garage and the option to host guests in a downstairs den/bedroom across the hall from a full bath. And with the option for a 2 or 3 car garage (community dependent), you can personalize your home to suit your needs.
Don’t miss your chance to tour this incredible layout and make it your new home. The 2676 is the perfect combination of style, space, and functionality, and it’s waiting for you!
$629,960
Move-in Ready
3 Bed
2 Bath
2 Stories
1670 Sq. Ft.
16612 SE Odell Lake Ln Happy Valley, OR 97086
Pleasant Valley VillagesA grand two-story entry and impressive openness await you in this gorgeous 1,670 square foot home!
The family room connects to the dining nook and kitchen, creating a spacious and inviting space, while the high quality counters and tile back splash offer a touch of luxury for every lifestyle. The loft upstairs gives versatility to the three bedrooms, with the option to enclose the loft for a fourth bedroom in select communities. Enjoy the master suite, complete with a walk-in closet and bathroom, and find comfort knowing you’ve chosen an incredibly open floor plan with unbeatable features at an affordable price, built with extraordinary care and thoughtfulness by Holt Homes.*
$464,960
Move-in Ready
3 Bed
2 Bath
1 Stories
1594 Sq. Ft.
109 Valemont Drive Eagle Point, OR 97524
Quail RunStep into comfort and style with our 1,594 square feet, one-level home!
This cozy layout features an inviting open great room, a dining nook, and a well-designed kitchen space – perfect for hosting gatherings with friends and family.
Our thoughtful design ensures a harmonious living experience by placing the guest rooms away from the primary bedroom offering privacy and functionality.
The heart of this home is the welcoming vaulted great room, creating a space to entertain or unwind on cozy nights. Abundant natural light pours in through the surrounding windows, enhancing the warmth and openness of the living area.
At Holt Homes, we are dedicated to delivering quality materials and craftsmanship, tailored to meet the diverse demands of every lifestyle with ease. Welcome to a home built for the Pacific Northwest – where comfort meets thoughtful design.


